• DE
  • EN

Target groups

  • Schools & Teachers
  • Prospective International Students
  • Students
  • Former students (Alumni)
  • Endow & Fund
  • Media Service - Press

Quicklinks

  • Job vacancies
  • Course Catalogues
  • eLearning
  • Library
  • IT-Services
  • Campus maps
  • Dining Hall Menus
  • Webmail
BTU overview Close BTU overview
  • Schools & Teachers
  • Prospective International Students
  • Students
  • Former students (Alumni)
  • Endow & Fund
  • Media Service - Press
  • Job vacancies
  • Course Catalogues
  • eLearning
  • Library
  • IT-Services
  • Campus maps
  • Dining Hall Menus
  • Webmail
  • DE
  • EN
Homepage
Close
  • University
    • The BTU
    • Structure
    • Career & Commitment
    • Partnerships & structural change
  • Research
    • Current research
    • Research Profile
    • Research Support
    • Young Academics
  • Study
    • Study program
    • Before studying
    • During studies
    • After Graduation
  • International
    • International Profile
    • From abroad to BTU
    • Going abroad with BTU
    • International Students
    • News
    • Contacts
  • Continuing Education
  • Transfer
    • Academic professionals
    • Business and research collaborations
    • Founding at the BTU
    • Innovative transfer projects
    • Get to know us
  • University life
    • Our values
    • Family & Dual Career
    • Sport & Health
    • Experience BTU & Region
Logo der BTU Cottbus-Senftenberg
Faculty 6
Chair of Design, building theory and interior design Prof. Dr. h. c. Jörg Kühn
  • Homepage
  • teaching
    • design
    • building science
    • design thesis
    • world heritage
    • gallery
  • research
    • research colloquium
    • oikonet
  • team
    • professor
    • staff
    • former assistants
    • contact
    • imprint
  • Moodle
  • Entwerfen, Gebäudekunde und Raumgestaltung
  • teaching
  • gallery
  • arbeiten ma
  • s16

gallery

  • 1: ba projects
  • 2: arbeiten ma
    • Aktive Seite ist 2.1: s16
    • 2.2: s_15
    • 2.3: s_14
    • 2.4: s_12
    • 2.5: s_09
  • 3: thesis projects
  • 4: thesis projects
  • 5: events

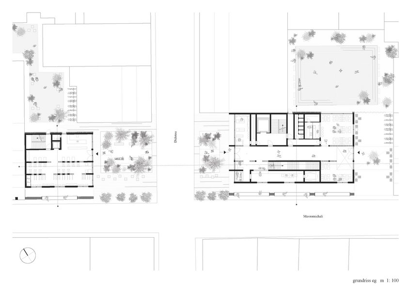
summer term 2016

studio athen

louisa simon

Logo der BTU Cottbus-Senftenberg, ohne Text
  • Contact
  • Legal Notice
  • Privacy Policy
  • Accessibility
  • Facebook
  • Instagram
  • Youtube
  • LinkedIn
Logo der BTU Cottbus-Senftenberg

About Cookies

This website uses cookies. There are two types of cookies: The first type supports the basic functionality of our website. The second allows us to improve our content for you by saving and analyzing pseudonymised user data. Since this second type is technically not required to run the website, you can withdraw your consent to those cookies at any time. For more information please visit our pages on data protection.

Mandatory

These cookies are needed for a smooth operation of our website.

Statistic

For statistical reasons, we use the platform Matomo to analyse the user flow with the help of website users‘ pseudonymised data. This allows us to optimize website content.

NamePurposeLifetimeTypeProvider
_pk_id missing translation: trackingobject._pk_id.desc 13 missing translation: duration.months missing translation: type.cookie_http+html Matomo
_pk_ref missing translation: trackingobject._pk_ref.desc 6 missing translation: duration.months missing translation: type.cookie_http+html Matomo
_pk_ses missing translation: trackingobject._pk_ses.desc 30 missing translation: duration.minutes missing translation: type.cookie_http+html Matomo