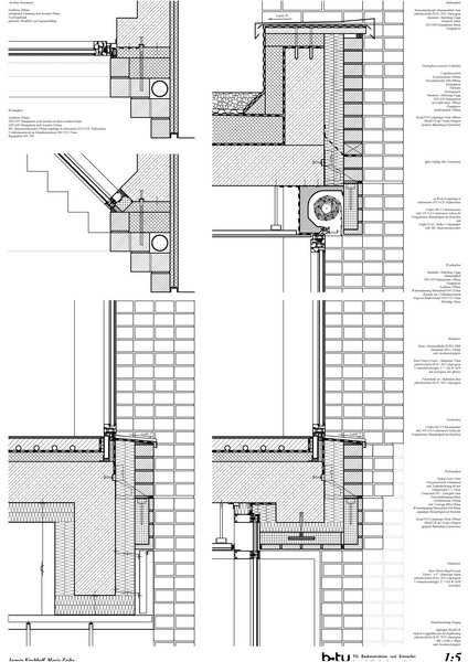
Fachgebiet
Entwerfen und Baukonstruktion
Prof. Karl Plastrotmann
Baukonstruktion Masterstudiengang
Fassaden aus Ziegeln
Studierende: Jasmin Kirchhoff, Maria Zaika
Hinweis zu Cookies
Unsere Webseite verwendet Cookies. Diese haben zwei Funktionen: Zum einen sind sie erforderlich für die grundlegende Funktionalität unserer Website. Zum anderen können wir mit Hilfe der Cookies unsere Inhalte für Sie immer weiter verbessern. Hierzu werden pseudonymisierte Daten von Website-Besuchern gesammelt und ausgewertet. Das Einverständnis in die Verwendung der technisch nicht notwendigen Cookies können Sie jeder Zeit wiederrufen. Weitere Informationen erhalten Sie auf unseren Seiten zum Datenschutz.