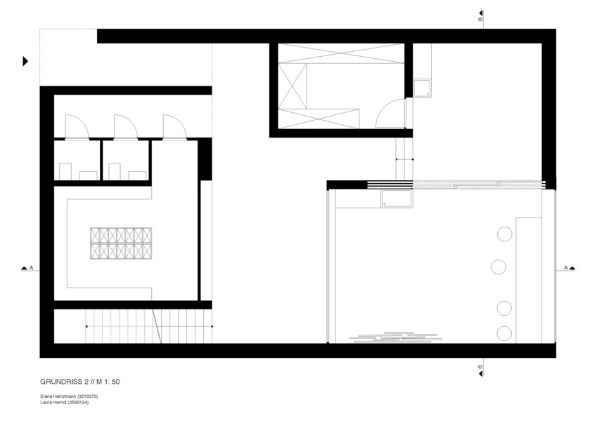
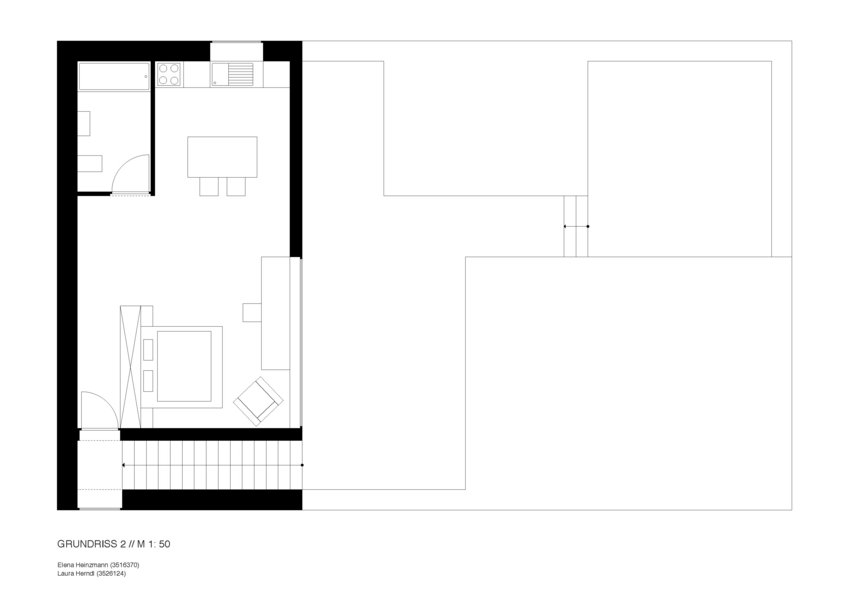
Fachgebiet
Entwerfen, Gebäudekunde und Raumgestaltung
prof. dr.h.c. dipl.-ing. jörg j. kühn
sommersemester 2016
ep2 / zweites semester
atelierhaus
laura herndl, elena heinzmann
Hinweis zu Cookies
Unsere Webseite verwendet Cookies. Diese haben zwei Funktionen: Zum einen sind sie erforderlich für die grundlegende Funktionalität unserer Website. Zum anderen können wir mit Hilfe der Cookies unsere Inhalte für Sie immer weiter verbessern. Hierzu werden pseudonymisierte Daten von Website-Besuchern gesammelt und ausgewertet. Das Einverständnis in die Verwendung der technisch nicht notwendigen Cookies können Sie jeder Zeit wiederrufen. Weitere Informationen erhalten Sie auf unseren Seiten zum Datenschutz.