• DE
  • EN

Zielgruppen

  • Schulen & Lehrkräfte
  • Studieninteressierte
  • Internationale Studieninteressierte
  • Studierende
  • Alumni
  • Beschäftigte
  • Stifter & Förderer
  • Presse

Querverweise

  • Stellenangebote
  • Lehrangebote
  • eLearning
  • Bibliothek
  • IT-Services
  • Campuspläne
  • Mensapläne
  • Webmail
  • Event-Anmeldung
BTU auf einen Blick BTU auf einen Blick schließen
  • Schulen & Lehrkräfte
  • Studieninteressierte
  • Internationale Studieninteressierte
  • Studierende
  • Alumni
  • Beschäftigte
  • Stifter & Förderer
  • Presse
  • Stellenangebote
  • Lehrangebote
  • eLearning
  • Bibliothek
  • IT-Services
  • Campuspläne
  • Mensapläne
  • Webmail
  • Event-Anmeldung
  • DE
  • EN
Startseite
Schließen
  • Universität
    • Die BTU
    • Struktur
    • Karriere & Engagement
    • Partnerschaften & Strukturwandel
  • Forschung
    • Aktuelle Forschung
    • Forschungsprofil
    • Förderung
    • Wissenschaftlicher Nachwuchs
  • Studium
    • Studienangebot
    • Vor dem Studium
    • Im Studium
    • Nach dem Studium
  • International
    • Internationales Profil
    • Aus dem Ausland an die BTU
    • Mit der BTU ins Ausland
    • Für internationale Studierende
    • Kontakt
  • Weiterbildung
    • Weiterbildungsangebote
    • Wissenschaftliche Weiterbildung
    • Kontakt
  • Transfer
    • Akademische Fachkräfte
    • Wirtschafts- und Forschungskooperationen
    • Gründen an der BTU
    • Innovative Transferprojekte
    • Lernen Sie uns kennen
  • Unileben
    • Unsere Werte
    • Familie & Dual Career
    • Sport & Gesundheit
    • BTU & Region erleben
Logo der BTU Cottbus-Senftenberg
Fakultät 6
Fachgebiet Entwerfen, Gebäudekunde und Raumgestaltung prof. dr.h.c. dipl.-ing. jörg j. kühn
  • Startseite
  • lehre
    • entwerfen
    • gebäudekunde
    • master_diplom
    • weltkulturerbe
    • galerie
  • forschung
    • forschungskolloqium
    • oikonet
  • team
    • professor
    • assistenten
    • ehemalige assistenten
    • kontakt
    • impressum
  • moodle
  • Entwerfen, Gebäudekunde und Raumgestaltung
  • team
  • professor
  • projekte
  • justizvollzug

professor

  • 1: projekte
    • 1.1: verwaltung
    • 1.2: industriebau
    • Aktive Seite ist 1.3: justizvollzug
    • 1.4: wettbewerbe_gutachten
    • 1.5: wohnen
    • 1.6: bauen im bestand
    • 1.7: banken, handelsräume
    • 1.8: design industrial
    • 1.9: design corporate
    • 1.10: freies zeichnen

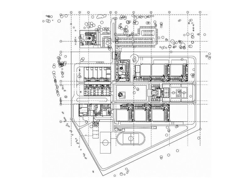
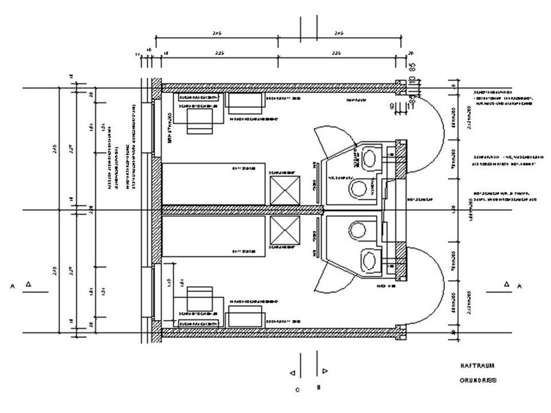
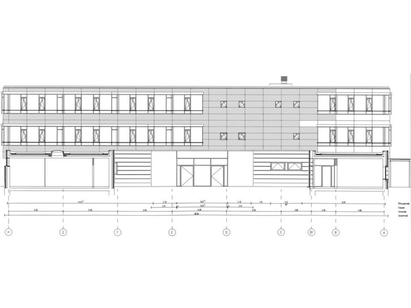
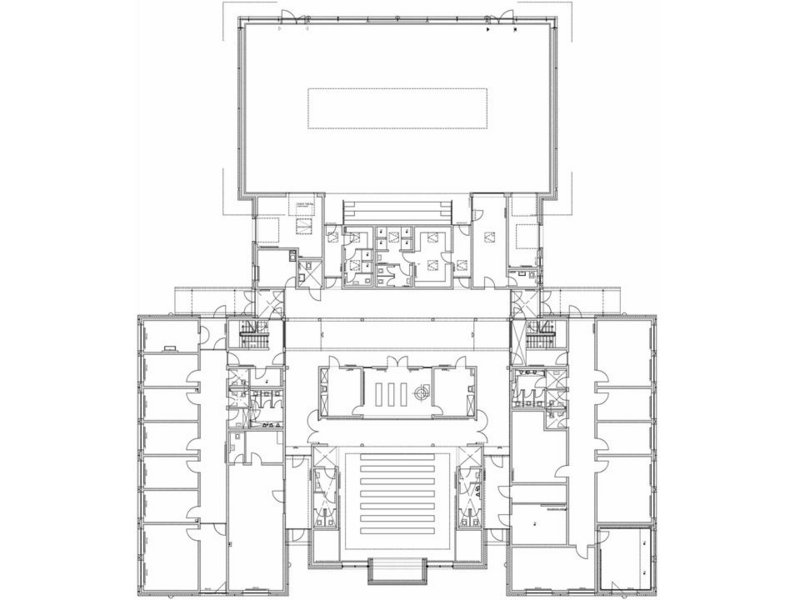
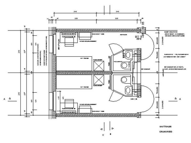
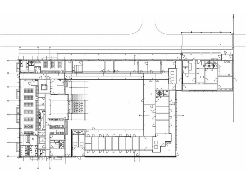
justizvollzug

abu dhabi state prison, vereinigte arab. emirate
jva weiterstadt, hessen
jva cottbus, brandenburg
Logo der BTU Cottbus-Senftenberg, ohne Text
  • Kontakt
  • Impressum
  • Datenschutz
  • Barrierefreiheit
  • Facebook
  • Instagram
  • Youtube
  • LinkedIn
Logo der BTU Cottbus-Senftenberg

Hinweis zu Cookies

Unsere Webseite verwendet Cookies. Diese haben zwei Funktionen: Zum einen sind sie erforderlich für die grundlegende Funktionalität unserer Website. Zum anderen können wir mit Hilfe der Cookies unsere Inhalte für Sie immer weiter verbessern. Hierzu werden pseudonymisierte Daten von Website-Besuchern gesammelt und ausgewertet. Das Einverständnis in die Verwendung der technisch nicht notwendigen Cookies können Sie jeder Zeit wiederrufen. Weitere Informationen erhalten Sie auf unseren Seiten zum Datenschutz.

Erforderlich

Diese Cookies werden für eine reibungslose Funktion unserer Website benötigt.

Statistik

Für den Zweck der Statistik betreiben wir die Plattform Matomo, auf der mittels pseudonymisierter Daten von Websitenutzern der Nutzerfluss analysiert und beurteilt werden kann. Dies gibt uns die Möglichkeit Websiteinhalte zu optimieren.

NameZweckAblaufTypAnbieter
_pk_id missing translation: trackingobject._pk_id.desc 13 missing translation: duration.months missing translation: type.cookie_http+html Matomo
_pk_ref missing translation: trackingobject._pk_ref.desc 6 missing translation: duration.months missing translation: type.cookie_http+html Matomo
_pk_ses missing translation: trackingobject._pk_ses.desc 30 missing translation: duration.minutes missing translation: type.cookie_http+html Matomo